Opening Detail drawings
Window
Windowbeépítés függőleges metszete
F-03 02 Légrés nélküli réteges falszerkezet EXPERT FIX hőszigeteléssel
F-03 02 Légrés nélküli réteges falszerkezet EXPERT FIX hőszigeteléssel 2.
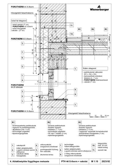
Ablakbeépítés függőleges metszete - PTH 44 X-therm + vakolat
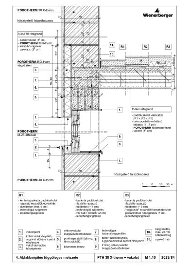
Ablakbeépítés függőleges metszete - PTH 38 X-therm + vakolat
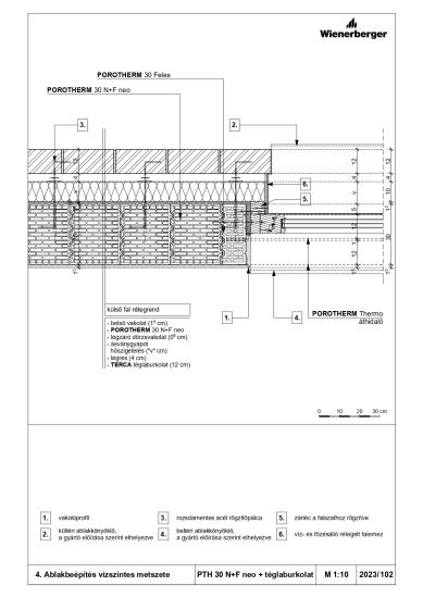
Ablakbeépítés függőleges metszete - PTH 30 N+F neo + téglaburkolat
Ablakbeépítés függőleges metszete - PTH 30 N+F neo + téglaburkolat
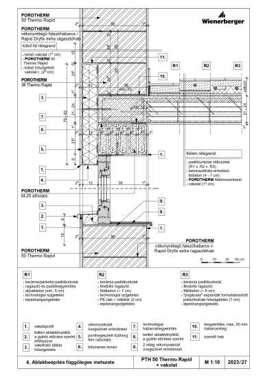
Ablakbeépítés függőleges metszete - PTH 50 Thermo Rapid + vakolat
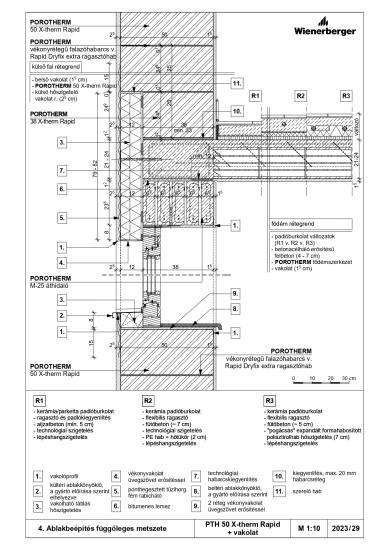
Ablakbeépítés függőleges metszete - PTH 50 X-therm Rapid + vakolat
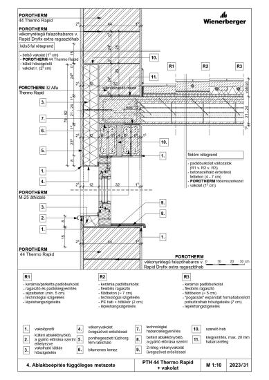
Ablakbeépítés függőleges metszete - PTH 44 Thermo Rapid + vakolat
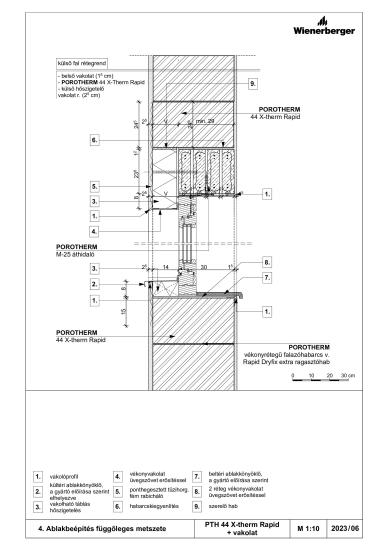
Ablakbeépítés függőleges metszete - PTH 44 X-therm Rapid + vakolat
Ablakbeépítés függőleges metszete - PTH 44 X-therm Rapid + vakolat
Ablakbeépítés függőleges metszete - PTH 38 X-therm Rapid + vakolat
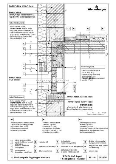
Ablakbeépítés függőleges metszete - PTH 30 N+F Rapid + hőszigetelés + vakolat
Ablakbeépítés függőleges metszete - PTH 30 N+F Rapid + hőszigetelés + vakolat
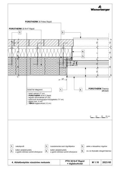
Ablakbeépítés függőleges metszete - PTH 30 N+F Rapid + téglaburkolat
Ablakbeépítés függőleges metszete - PTH 30 N+F Rapid + téglaburkolat
Windowbeépítés vízszintes metszete
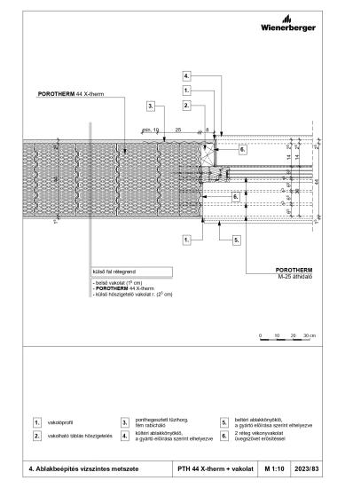
Ablakbeépítés vízszintes metszete - PTH 44 X-therm + vakolat
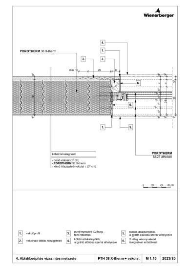
Ablakbeépítés vízszintes metszete - PTH 38 X-therm + vakolat
Ablakbeépítés vízszintes metszete - PTH 30 N+F neo + téglaburkolat
Ablakbeépítés vízszintes metszete - PTH 30 N+F neo + téglaburkolat
Ablakbeépítés vízszintes metszete - PTH 50 Thermo Profi + vakolat
Ablakbeépítés vízszintes metszete - PTH 50 X-therm Rapid + vakolat
Ablakbeépítés vízszintes metszete - PTH 44 Thermo Rapid + vakolat
Ablakbeépítés vízszintes metszete - PTH 44 X-therm Rapid + vakolat
Ablakbeépítés vízszintes metszete - PTH 38 Thermo Rapid + vakolat
Ablakbeépítés vízszintes metszete - PTH 38 X-therm Rapid + vakolat
Ablakbeépítés vízszintes metszete - PTH 30 N+F Rapid + hőszigetelés + vakolat
Ablakbeépítés vízszintes metszete - PTH 30 N+F Rapid + téglaburkolat
Ablakbeépítés vízszintes metszete - PTH 30 N+F Rapid + téglaburkolat
F-03 03 Íves pillér hőszigetelése
F-03 03 Íves pillér hőszigetelése