Detail drawings

Austrotherm
Bramac
Hofstädter Kft.
Hörmann
Knauf Insulation
Terrán
Ytong
Wienerberger
Wienerberger
Wienerberger
Search Detail drawings 


Alapkép
Hirdetés


Masonry - Slab Detail drawings
  Kéregelemes fal
Kéregfal és alaplemez csatlakozása, szigeteletlen pince esetén, duzzadószalaggal
Kéregfal és alaplemez csatlakozása, talajnedvesség ellen szigetelt pince esetén
Kéregfal elemek csatlakozása, szigeteletlen pince esetén, vízszintes metszet
Kéregfal elemek csatlakozása, talajnedvesség ellen szigetelt pince esetén, vízszintes metszet
Falsarokckialakítása kéregfallal, külső falsarok, vízszintes metszet
Kéregfalak t-falcsatlakozása, belső fal csatlakozása külső falhoz, vízszintes metszet
Kéregfal pillércsatlakozása, monolit vasbeton pillérhez
Külső kéregfal födémcsatlakozása, kéregpaneles födémhez
Belső kéregfal födémcsatlakozása, kéregpaneles födémhez
  Külső teherhordó fal és közbenső födém connection
Kéregpaneles födém, hőszigetelt koszorúval, nyílászáró beépítéssel
Kéregpaneles födém, koszorútéglával, nyílászáró beépítéssel
Kéregpaneles födém, hőszigetelt koszorúval, koszorúba ültetett kéregpanel esetén
Kéregpaneles födém, koszorútéglával, habarcsba ültetett kéregpanel esetén
Mestergerendás födém, hőszigetelt koszorúval, nyílászáró beépítéssel
Mestergerendás födém, hőszigetelt koszorúval
Mestergerendás födém, koszorútéglával
F-03 01 Hőszigetelő homlokzati bevonatrendszer kialakítása expandált polisztirolhab hőszigeteléssel
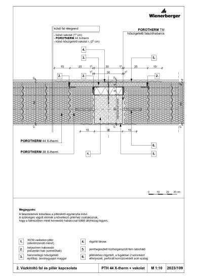
Külső fal és közbenső födém kapcsolata - PTH 44 X-therm + vakolat
Külső fal és közbenső födém kapcsolata - PTH 38 X-therm + vakolat
Külső fal és közbenső födém kapcsolata - PTH 30 N+F neo + téglaburkolat
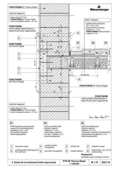
Külső fal és közbenső födém kapcsolata - PTH 50 Thermo Rapid+ vakolat
Külső fal és közbenső födém kapcsolata - PTH 50 Thermo Rapid+ vakolat
Külső fal és közbenső födém kapcsolata - PTH 50 X-therm Rapid+ vakolat
Külső fal és közbenső födém kapcsolata - PTH 50 X-therm Rapid+ vakolat
Külső fal és közbenső födém kapcsolata - PTH 44 Thermo Rapid+ vakolat
Külső fal és közbenső födém kapcsolata - PTH 44 Thermo Rapid + vakolat
Külső fal és közbenső födém kapcsolata - PTH 44 X-therm Rapid + vakolat
Külső fal és közbenső födém kapcsolata - PTH 44 X-therm Rapid + vakolat
Külső fal és közbenső födém kapcsolata - PTH 44 X-therm Rapid + vakolat
Külső fal és közbenső födém kapcsolata - PTH 38 Thermo Rapid + vakolat
Külső fal és közbenső födém kapcsolata - PTH 38 X-therm Rapid + vakolat
Külső fal és közbenső födém kapcsolata - PTH 30 N+F Rapid + hőszigetelés + vakolat
Külső fal és közbenső födém kapcsolata - PTH 30 N+F Rapid + téglaburkolat
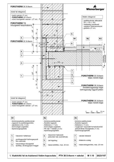
Vázkitöltő fal és közbenső födém kapcsolata - PTH 38 X-therm + vakolat
Vázkitöltő fal és közbenső födém kapcsolata - PTH 44 X-therm + vakolat
Vázkitöltő fal és közbenső födém kapcsolata - PTH 38 X-therm + vakolat
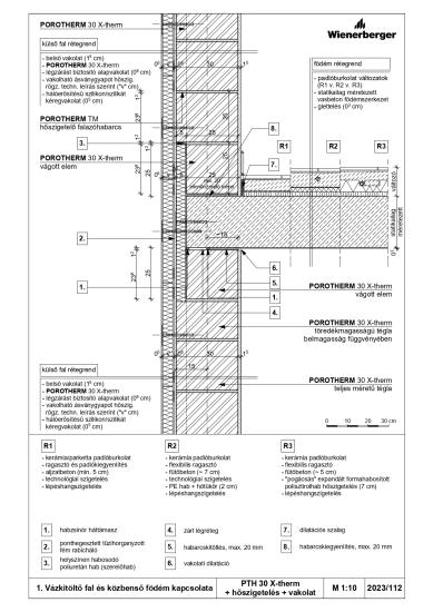
Vázkitöltő fal és közbenső födém kapcsolata - PTH 30 X-therm + hőszigetelés + vakolat
  Úsztatott padló kialakítása
A-01 01 Úsztatott padló kialakítása közbenső födémen válaszfal-csatlakozásnál hidegburkolattal
A-01 02 Úsztatott padló kialakítása közbenső födémen parketta burkolattal
  Külső, teherhordó falszerkezet metszete
Ytong Lambda 50 cm-es falazóelemmel 01
Ytong Lambda 50 cm-es falezóelemmel 02
Ytong Lambda 375 cm-es falazóelemmel 01
Ytong Lambda 375 cm-es falezóelemmel vasbeton koszorú alkalmazása áthidalóként
Silka-HM 250 NF+GT falazóelemmel
Silka-HML 300 NF+GT falazóelemmel
  YTONG falazatok
02.16. Falazatok 1cm-es fugával
02.17. Falazatok 0,5 cm-es fugával
02.18. Falazatok 0.25 cm-es fugával
Függőleges falmetszet - Ytong Lambda 37,5-es falazóelemmel
  SILKA falazatok
01.18. SILKA burkoló előtétfalas SILKA teherhordó falszerkezet pozitív sarok csomópont
01.19. SILKA burkoló előtétfalas SILKA teherhordó falszerkezet negatív sarok csomópont
01.20. SILKA külső és belső teherhordó pincefal találkozás csorbázattal
01.21. SILKA külső és belső teherhordó pincefal találkozás hilti szalagos bekötéssel
  Dilatációs hézagkiképzés
02.06. Dilatációs hézagképzés új építés esetén pl. ikerházi lakáselválasztó falnál, vízszintes metszet
02.07. Dilatációs hézagképzés toldalék építés esetén
02.36. Sorházi, ikerházi lakáselválasztó falak akusztikailag helyes kialakítása dilatált alaptesten
01.14. Szerkezetileg dilatált sorházi SILKA kéthéjú lakáselválasztó fal és tetőhéjazat kapcsolata
01.15. Szerkezetileg dilatált sorházi SILKA kéthéjú lakáselválasztó fal és tetőhéjazat kapcsolata kiemelt attikával
  Padlásfödém hőszigetelése
P-03 01 Padlásfödém hőszigetelése Padlap hőszigetelő rendszerrel
P-03 01a Padlásfödém hőszigetelése Padlap GIPSZ hőszigetelő rendszer
  T-falcsatlakozás
T-falcsatlakozás 10-es válaszfal bekötése teherhordó falba
T-falcsatlakozás 10-es válaszfalakkal
  Derékszögu külso falsarok
Derékszögu külso falsarok 38-AS TEHERHORDÓ FALAZATTAL
  Leier Durisol zajárnyékoló falak
Leier Durisol Előregyártott zajvédő falrendszer DSI 25/13-N
Leier Durisol Előregyártott zajvédő falrendszer DSI 25/13-W
Leier Durisol Előregyártott zajvédő falrendszer DSI 30/13-N
Leier Durisol Előregyártott zajvédő falrendszer DSI 30/13-W
Leier Durisol Előregyártott zajvédő falrendszer LSA 50/12/25-W
Leier Durisol fal hossz szelvény metszet
Leier Durisol mintafal
Leier Durisol falazóblokk geometria
Leier Durisol Menekülőkapu
  Wolf Haus kandalló
Wolf Haus kandalló
  Homlokzati fal és belső főfal connection
Silka homlokzati fal és belső főfal csatlakozása Vízszintes metszet
  Falazóelemek kapcsolati rajzai
1. Falazóelemek kapcsolati rajzai - PTH 50 Thermo Rapid
2. Falazóelemek kapcsolati rajzai - PTH 50 X-therm Rapid
3. Falazóelemek kapcsolati rajzai - PTH 44 Thermo Rapid
4. Falazóelemek kapcsolati rajzai - PTH 44 X-therm vagy PTH 44 X-therm Rapid
5. Falazóelemek kapcsolati rajzai - PTH 38 Thermo Rapid
6. Falazóelemek kapcsolati rajzai - PTH 38 X-therm vagy PTH 38 X-therm Rapid
7. Falazóelemek kapcsolati rajzai - PTH 30 X-Therm vagy PTH 30 X-Therm Rapid
8. Falazóelemek kapcsolati rajzai - PTH 30 N+F neo vagy PTH 30 N+F Rapid
9. Falazóelemek kapcsolati rajzai - PTH 44 X-therm Rapid + PTH 10 N+F Rapid
10. Falazóelemek kapcsolati rajzai - PTH 44 X-therm + PTH 10 N+F
11. Falazóelemek kapcsolati rajzai - PTH 44 Thermo Rapid + PTH 30 AKU Z
12. Falazóelemek kapcsolati rajzai - PTH 30 X-therm + PTH 30 AKU Z
14. Falazóelemek kapcsolati rajzai - PTH 30 X-therm + PTH 25 AKU Z
15. Falazóelemek kapcsolati rajzai - PTH 38 Pincetégla
16. Falazóelemek kapcsolati rajzai - PTH 10 N+F + PTH 10 N+F
17. Falazóelemek kapcsolati rajzai - PTH 10 N+F + PTH 10 N+F
Falazóelemek kapcsolati rajzai - PTH 30 X-therm + PTH 30 AKU Z (T12)
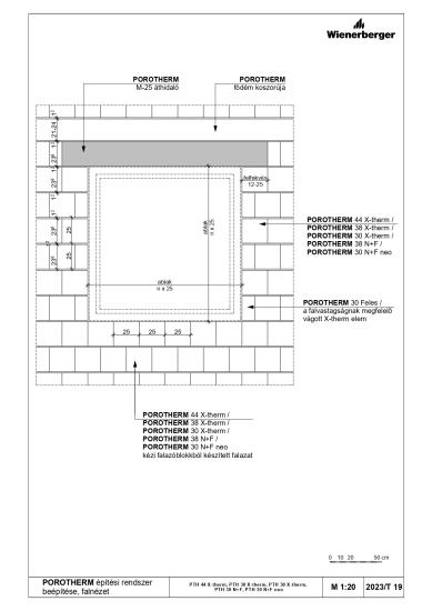
  POROTHERM Profi építési rendszer beépítése, falnézet
1. POROTHERM Profi építési rendszer beépítése, falnézet - PTH 50 Thermo Rapid, PTH 50 X-therm Rapid, PTH 44 Thermo Rapid, PTH 44 X-therm Rapid, PTH 38 Thermo Rapid, PTH 38 X-therm Rapid, PTH 30 X-therm Rapid, PTH 30 N+F Rapid
2. POROTHERM építési rendszer beépítése, falnézet - PTH 44 X-therm, PTH 38 X-therm, PTH 30 X-therm, PTH 38 N+F, PTH 30 N+F
  Knauf Insulation SUPAFIL fújható üveggyapot - homlokzat felújítása kívülről, tűzfalak közötti réteg
H 1.1 Falazott homlokzat felújítása kívülről
H 1.2 Szerelt fal homlokzat felújítása kívülről
H 1.3 Homlokzat felújítás légrés kitöltéssel
H 1.4 Meglévő tűzfalak közötti hézag kitöltése
H 1.5 Meglévő és új tűzfal közötti hézag kitöltése
  Knauf Insulation Kőzetgyapot - Homlokzat
K-H-1 Nyílászáró beépítés vakolt homlokzatnál I.
K-H-2 Nyílászáró beépítés vakolt homlokzatnál II.
K-H-3 Nyílászáró beépítés tűzgátló sávval I.
K-H-4 Nyílászáró beépítés tűzgátló sávval II.
K-H-5 Nyílászáró beépítés szerelt homlokzatnál I.
K-H-6 Nyílászáró beépítés szerelt homlokzatnál II.
  Knauf Insulation Üveggyapot - Homlokzat
Ü-H-1 Nyílászáró beépítés szerelt homlokzatnál I.
Ü-H-2 Nyílászáró beépítés szerelt homlokzatnál II.
Ü-H-3 Homlokzati burkolatváltás tűzgátló sávval
External wall - slab
  Koszorú megoldások
03.80. Koszorú megoldás közbenső 30 cm-es teherhordófalnál, YTONG DE födémpallóval
03.81. Koszorú megoldás közbenső 37,5 cm-es teherhordó falnál, YTONG DE födémpallóval hosszmetszet
  Homlokzatdiszítés, burkolatok
02.05. Gránit homlokzatburkolat rögzítése, függőleges metszet. Fekvő formátumú gránitlap
02.20. Példa homlokzati díszítés kialakítására
  Wolf Haus koszorú
Födém és falpanel csatlakozása dilatációnál
Födém és homlokzati falpanel csatlakozása homlokzatburkolat váltásnál
Födém és homlokzati falpanel csatlakozása látszó gerendás födémmel
Közbenső födém és homlokzati fal csatlakozása vakolt homlokzattal
  Knauf Insulation Kőzetgyapot - Közbenső födém
K-KÖF-1 Úsztatott padlórétegrend közbenső födémen I.
K-KÖF-2 Úsztatott padlórétegrend közbenső födémen II.
K-KÖF-3 Úsztatott padlórétegrend közbenső födémen III.
K-KÖF-4 Szerelt padlórétegrend közbenső födémen I.
K-KÖF-5 Szerelt padlórétegrend közbenső födémen II.
K-KÖF-6 Szerelt padlórétegrend közbenső födémen III.
  Knauf Insulation Üveggyapot - Közbenső födém
Ü-KÖF-1 Szerelt padlórétegrend közbenső födémen I.
Ü-KÖF-2 Szerelt padlórétegrend közbenső födémen II.
Ü-KÖF-3 Szerelt padlórétegrend közbenső födémen III.
Exterior wall - slab
  Teraszcsatlakozás belső tér fölött
Kéregpaneles födém, azonos födémsíkoknál
Kéregpaneles födém, teherhordási irány váltással
Mestergerendás födém, azonos födémsíkoknál
Mestergerendás födémnél, teherhordási irány váltással
Logia
Árkádfödém
  Knauf Insulation Heraklith Fagyapot - Arkádfödém
F-ÁF-1 Árkádfödém gerendánál, vakolt
F-ÁF-2 Árkádfödém gerendánál, álmennyezettel
F-ÁF-3 Árkádfödém pillérnél, vakolt
F-ÁF-4 Árkádfödém pillérnél, álmennyezettel
  Knauf Insulation Kőzetgyapot - Arkádfödém
K-ÁF-1 Árkádfödém gerendánál, vakolt
K-ÁF-2 Árkádfödém gerendánál, álmennyezettel
K-ÁF-3 Árkádfödém pillérnél, vakolt
K-ÁF-4 Árkádfödém pillérnél, álmennyezettel
  Knauf Insulation Üveggyapot - Arkádfödém
Ü-ÁF-1 Árkádfödém gerendánál, álmennyezettel
Ü-ÁF-2 Árkádfödém pillérnél, álmennyezettel
  Árkádfödém
P-02 01 Árkádfödém hőszigetelése
Interior wall – slab
  Belső teherhordó fal és közbenső födém kapcsolata
Kéregpaneles födém, teherhordó falnál, teherhordási iránnyal párhuzamos metszet
Kéregpaneles födém, teherhordó falnál, teherhordási irányra merőleges metszet
Mestergerendás födém, teherhordó falnál, teherhordási iránnyal párhuzamos metszet
Mestergerendás födém, teherhordó falnál, teherhordási irányra merőleges metszet
01.26. Vázas szerkezet, SILKA akusztikai fal és nagylehajlású födém (másodlagos alakváltozás nagyobb mint 5mm) kapcsolata
Belső teherhordó fal és közbenső födém kapcsolata - PTH 25 N+F ésPTH 25 N+F
  Belső válaszfal és közbenső födém kapcsolata
Válaszfal és közbenső födém és kapcsolata - PTH 10 N+F Rapid
Kéregpaneles födém, válaszfalnál
Mestergerendás födém, válaszfalnál
Válaszfal és közbenső födém kapcsolata - PTH 10 N+F
  Falak merevítése
02.37. Nagy magasságú falak merevítése
02.47. Nagy magasságú válaszfalak merevítése
02.49. Válaszfal merevítése helyszíni vasbeton bordával, vízszintes metszet
  Válaszfal kapcsolata födémhez
02.43. Válaszfal kapcsolata födémhez, kis lehajlású födém l ≤ 4,5 m
02.44. Válaszfal kapcsolata ipari födémhez, (nagy lehajlású födém 2.)
02.45. Válaszfal kapcsolata födémhez nagy lehajlású födém rugalmas kapcsolattal
02.46. Válaszfal kapcsolata födémhez nagy lehajlású födém oldalirányú megtámasztással
03.83. Válaszfal kapcsolata födémhez, kis lehajlású DE pallófödém
01.08. SILKA válaszfal és kislehajlású födém kapcsolata (födém másodlagos alakváltozása max 5mm)
  Válaszfal connection tetőtéri mennyezethez
02.52. Válaszfal és beépített tetőtéri fedélszék csatlakozása 1.
02.51. Válaszfal és tetőtéri beépített fedélszék csatlakozása 2. Függőleges metszet
01.13.1. SILKA válaszfal és tetőhéjazat kapcsolata
01.13.2. SILKA válaszfal és tetőhéjazat kapcsolata - vb koszorúval erősített válaszfal
  Válaszfal kapcsolata főfalhoz
02.48. Válaszfal és főfal kapcsolata nagy belmagasság, nagyobb faltáblák esetében. Vízszintes metszet
02.53. Válaszfal kapcsolata főfalhoz
Infill walls
  Pillér, fal connectioni
04.96. YTONG belső falak merevítése és pillérkapcsolatai vasbeton pillérek esetén, vízszintes metszet pillérsíkban lévő falmező esetén
04.97. YTONG belső falak merevítése és pillérkapcsolatai vasbeton pillérek esetén vízszintes metszet, pillérek előtt futó falmezők esetén
04.98. Monolit vasbeton homlokzati pillér kiegészítő hőszigetelése vízszintes metszet
04.99. Monolit vasbeton pillér és beltéri YTONG falazat csatlakozása vízszintes metszet
04.91. YTONG belső falak merevítése és pillérkapcsolatai acél pillérek esetén, vízszintes metszet
04.92. YTONG belső falak merevítése és pillérkapcsolatai acél pillérek esetén, vízszintes metszet
04.94. YTONG homlokzati falak merevítése és pillérkapcsolatai, fatartók esetén vízszintes metszet
04.95. YTONG belső falak merevítése és pillérkapcsolatai fatartók esetén
Vázkitöltő fal és pillér kapcsolata - PTH 44 X-therm + vakolat
Vázkitöltő fal és pillér kapcsolata - PTH 38 X-therm + vakolat
Vázkitöltő fal és pillér kapcsolata - PTH 30 X-therm + hőszigetelés + vakolat
  Akusztukai falak
01.22. Vázas szerkezet, SILKA akusztikai fal és YTONG külső fal csatlakozása vasbeton pillérhez
01.23. Vázas szerkezet, SILKA akusztikai fal és SILKA külső fal csatlakozása vasbeton pillérhez
01.24. Vázas szerkezet, SILKA akusztikai fal csatlakozása YTONG külső falhoz
01.25. Vázas szerkezet, SILKA akusztikai fal és csatlakozó válaszfalak kapcsolata
  Fal vízszintes metszet
Vázas szerkezet, Silka akusztikai fal és Ytong homlokzati falazat csatlakoztatása vasbeton pillérhez
Pillércsatlakozás Vízszintes metszet
Stair
  Stair csatlakozás
Monolit födémnél, eloregyártott lépcsonél
Mestergerendás födémnél, monolit vasbeton lépcsővel
  Lépcso indítása
Legalsó szinten, elorgyártott lépcsonél
  Wolf Haus lépcső
Húzott karú lépcső - típus: 155
Kétkarú húzott fokú lépcső - típus: aurea
Kétkarú húzott fokú lépcső - típus: 130
Kétkarú húzott fokú lépcső - típus: 235
Kétkarú húzott fokú lépcső - típus: 293
Rétegelt lemez (nyers) lépcső érkező csomópont
Rétegelt lemez (nyers) lépcső induló csomópont
Frame construction building
Sandwich-structured composite building
  Sandwich-structured composite building
Loft slab
  Felfelé hülő födém
P-03 01 Padlásfödém hőszigetelése Padlap hőszigetelő rendszerrel
P-03 01a Padlásfödém hőszigetelése Padlap GIPSZ hőszigetelő rendszer
A-01 01 Úsztatott padló kialakítása közbenső födémen válaszfal-csatlakozásnál hidegburkolattal
A-01 02 Úsztatott padló kialakítása közbenső födémen parketta burkolattal
  Knauf Insulation SUPAFIL fújható üveggyapot - padlásfödémek
F 2.1 Vasbeton padlásfödém felújítása I.
F 2.2 Vasbeton padlásfödém felújítása II.
F 2.3 Gerenda-béléstestes padlásfödém felújítása I.
F 2.4 Gerenda-béléstestes padlásfödém felújítása II.
F 2.5 Boltozat felújítása I.
F 2.6 Boltozat felújítása II.
F 2.7 Borított gerendás padlásfödém felújítása I.
F 2.8 Borított gerendás padlásfödém felújítása II.
F 2.9 Borított gerendás padlásfödém felújítása III.
F 2.10 Csapos gerendás padlásfödém felújítása I.
F 2.11 Csapos gerendás padlásfödém felújítása II.
F 2.12 Szeglemezes rácsostartós födém felújítása
  Knauf Insulation Kőzetgyapot - Padlásfödém
K-PAF-1 Hőszigetelt, gerenda-béléstestes padlásfödém
K-PAF-2 Hőszigetelt, vasbeton padlásfödém
K-PAF-3 Hőszigetelt, fa anyagú padlásfödém
  Knauf Insulation Üveggyapot - Padlásfödém
Ü-PAF-1 Hőszigetelt, gerenda-béléstestes padlásfödém
Ü-PAF-2 Hőszigetelt, vasbeton padlásfödém
Ü-PAF-3 Hőszigetelt, fa anyagú padlásfödém
Wall connection
  Wolf Haus fal-fal csatlakozás
Belső falpanelek törtvonalú csatlakozása
Belső falpanelek y csatlakozása
Belső teherhordó falpanelek csatlakozása
Belső teherhordó falpanelek sarok csatlakozása
  Wolf Haus falsarok csatlakozás
Negatív falsarok átszellőztetett homlokzatburkolatnál
Pozitív falsarok átszellőztetett homlokzatnál
Pozitív falsarok vakolt és átszellőztetett homlokzatok találkozásánál
Pozitív falsarok vakolt homlokzatnál
Tetőtéri ferde térelhatároló szerkezet és tetőtéri válaszfal találkozása
  Wolf Haus falrétegek
Norm külső teherhordó fal
Mega külső teherhordó fal
Thermo külső teherhordó fal
Thermo-mega külső teherhordó fal
Ultra-mega külső teherhordó fal
Passiv külső teherhordó fal
Arche nova külső teherhordó fal
Belső nem teherhordó és teherhordó válaszfal
Lakáselválasztó teherhordó fal
Épület-elválasztó teherhordó fal
Épület-elválasztó teherhordó fal 2
Belső teherhordó válaszfal
Épület-elválasztó teherhordó fal 3
Arche nova belső teherhordó fal
  Wolf Haus fürdőszoba
Lábazat fürdőszobánál
Zuhanytálca, fürdőkád és csőátvezetések tömítése
Slab layers
  Wolf Haus födémrétegek
Lakáson belüli közbenső födém
Lakáselválasztó közbenső födém
Lakáson belüli látszógerendás födém
Erkély/loggia födém
Lakáson belüli közbenső födém 2
Lakáson belüli 60 perces tűzűllóságú közbenső födém, gipszkarton burkolat ritkított deszkázaton
Lakáson belüli 60 perces tűzállóságú közbenső födém, gipszkarton burkolat fém tartószerkezeten
Padlástér alatti födém
Padlástér alatti födém kiegészítő hőszigeteléssel
Lakáson belüli közbenső födém vázfák között farost hőszigeteléssel
Padlástér alatti födém vázfák között farost hőszigeteléssel
Padlástér alatti födém passzívházhoz
  Knauf Insulation SUPAFIL fújható üveggyapot - födémrétegek
F 1.1 Vasbeton födém padlószerkezet felújítása
F 1.2 Gerendás födém padlószerkezet felújítása
F 1.3 Borított födém padlószerkezet felújítása
F 1.4 Borított födém felújítása alsó megbontással
F 1.5 Borított födém felújítása felső megbontással
Hirdetés
    Like all websites, eptar.hu uses cookies for better and safer operation.       More information